
HD tip Ewopeyen ano elektrik Single-girder Anlè Teknik
Ewopeyen Single Girder Anlè Teknik se kontra enfòmèl ant machin ki fèt ak fabrikasyon an akò strik ak FEM ak DIN estanda, ki ak avanse teknoloji ak bèl konsepsyon. Divize nan kalite jeneral ak sispansyon kalite, sipòte itilize nan Ewopeyen estanda anlè elektrik, apwopriye pou atelye ak depo manyen materyèl, gwo pati pyès ak presizyon asanble ak lòt kote.
HD tip Ewopeyen ano elektrik Single-girder Anlè Teknik
Kout Deskripsyon:
Ewopeyen Single Girder Anlè Teknik se kontra enfòmèl ant machin ki fèt ak fabrikasyon an akò strik ak FEM ak DIN estanda, ki ak avanse teknoloji ak bèl konsepsyon. Divize nan kalite jeneral ak sispansyon kalite, sipòte itilize nan Ewopeyen estanda anlè elektrik, apwopriye pou atelye ak depo manyen materyèl, gwo pati pyès ak presizyon asanble ak lòt kote.

Li ta ka lajman itilize nan fabrikasyon machin, metaliji, petwòl, petrifaksyon, pò, tren, aviyasyon sivil, manje, fè papye, konstriksyon, endistri elektwonik endistri, depo ak lòt sitiyasyon manyen sitiyasyon, esp. aplike nan manyen materyèl ki bezwen egzak pwezante, gwo konpozan asanble sitiyasyon egzak.

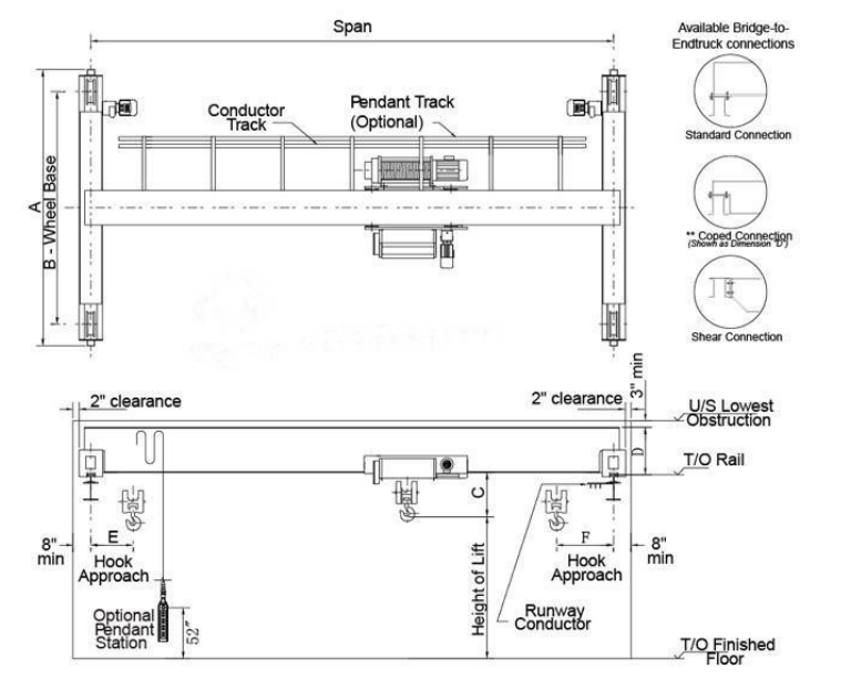
Imaj detaye:

Desen mak:

Paramèt teknik:
Span | m | 7.5 | 10.5 | 13.5 | 16.5 | 19.5 | 22.5 | 25.5 |
Kapasite | t | 1 ~ 12.5t | ||||||
Total pwa | KG | 1781 ~ 12086 | ||||||
Trolley pwa | KG | 405 ~ 740 | ||||||
Max. Chaj rou | kn | 13.5 ~ 90.94 | ||||||
Vwayaje tren | P24 ~ P43 | |||||||
Leve vitès | M / min | 0.8 / 5 | 0.8 / 5 | 0.8 / 5 | 0.8 / 5 | 0.8 / 5 | 0.8 / 5 | 0.8 / 5 |
Leve wotè | m | ≥ 6 | ≥ 6 | ≥ 6 | ≥ 6 | ≥ 6 | ≥ 6 | ≥ 6 |
Total motè pouvwa | kw | 4.31 | 4.31 | 4.31 | 4.31 | 4.67 | 4.67 | 4.67 |
Vitès teknik | M / min | 3-30 | 3-30 | 3-30 | 3-30 | 3-30 | 3-30 | 3-30 |
Trolley vitès | M / min | 2-20 | 2-20 | 2-20 | 2-20 | 2-20 | 2-20 | 2-20 |
Travay devwa | M5 / A5 | |||||||


English
עברית
slovenščina
Deutsch
Čeština
Latviešu
українська
Malti
magyar
日本語
România limbi
Srbija jezik (latinica)





